122 500 ₽/мес

3 500 ₽ за м²/мес.

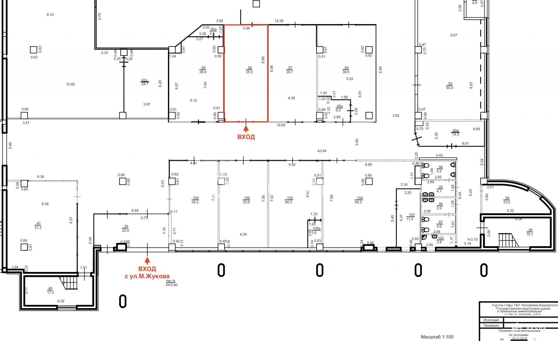
35 м²
Площадь
1/4
Этаж

Поделиться

Добавить в избранное

Сдаётся в аренду торговое помещение в ЦТиО "Простор" по адресу ул.Маршала Жукова 29:

- площадь 35 кв.м. 
- 1 этаж 
- чистовая отделка
- помещение оснащены центральной системой вентиляции и кондиционирования, автоматической системой пожаротушения
- режим работы с 9-00 до 21-00
- остановки транспорта в любую сторону города
- наличие большой парковки, рекламные возможности
- высота потолка 3, 1м.

Расположение:
Помещение на первом этаже ЦТиО "Простор", одно из значимых комплексов м-на Сипайлово, расположенное рядом с парковой зоной озера Кашкадан.

Звоните!
id:11253.

Дата обновления: 19 ноября 2025