Продажа торговой площади

8 000 000 ₽

40 000 ₽ за м²

200 м²
Площадь
3 м
Высота потолка
20 кВт
Энергетическая мощность
1/10
Этаж

Поделиться

Добавить в избранное

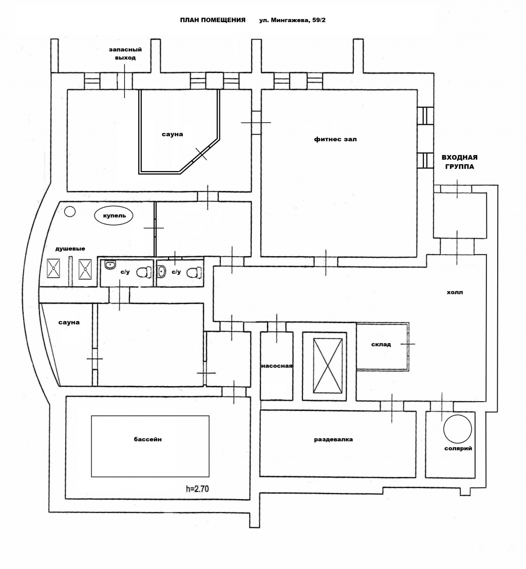
ОЗДОРОВИТЕЛЬНЫЙ КОМПЛЕКС С САНАРИУМОМ И БАССЕЙНОМ

Оздоровительный комплекс расположен в историческом центре Уфы на пересечении улиц Новомостовая и Мингажева - в непосредственной близости от проспекта Салавата Юлаева.
Район перспективной застройки и возведения пяти новых современных жилых комплексов, общей площадью 90 000 кв.м.
Выгодное местоположение и хорошее транспортное сообщение обеспечивают удобный доступ к объекту из всех районов города Уфы.

ОПИСАНИЕ

СПА сектор с бассейном, двумя саунами укомплектован оборудованием, имеются душевые, купели из лиственницы и вертикальный солярий.

Помещение находится в собственности

Общая площадь помещений - 200 кв.м
Этаж: цоколь
Отдельная входная группа
Запасный выход
Открытая парковка

Выделенная электрическая мощность 20 КВт
Центральные водоснабжение и водоотведение
Приточно-вытяжная вентиляция
Кондиционирование

КОММЕРЧЕСКИЕ УСЛОВИЯ

Цена продажи: 8 млн. руб.
Ипотека возможна

Дата обновления: 9 июля 2025