376 800 ₽/мес

1 200 ₽ за м²/мес.

314 м²
Площадь
-1/6
Этаж

Поделиться

Добавить в избранное

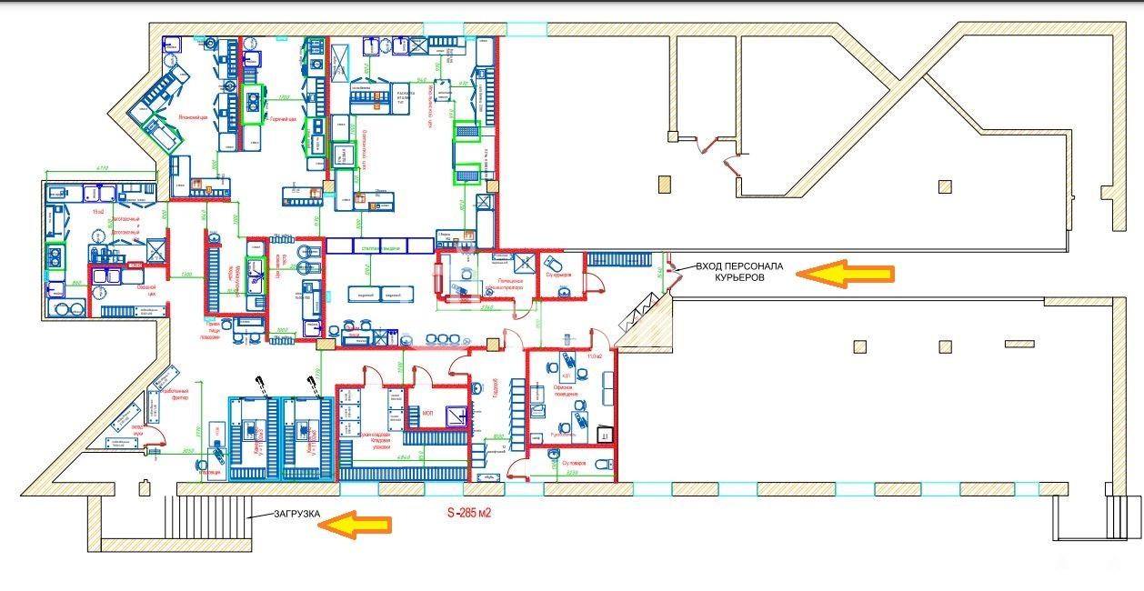
  Сдаётся помещение в отдельно стоящем здании в центре города по ул.Коммунистическая, д 80.
Помещение расположено не далеко от пересечения улиц Коммунистической и Цюрупы.
Большой автомобильный и пешеходный трафик
Две входные группы.
Высота потолков 2, 78м
Приточно-вытяжная система
Электрическая мощность - 100кВт.
Свой санузел
Хорошо подойдет под общепит, ресторан, бар, кафе, пищевое производство, службу доставки и т.д.
Условия аренды обсуждаются индивидуально!
Рассмотрим все варианты!
Звоните!
id:10966.

Дата обновления: 7 октября 2025