Продажа участка

Башкортостан Республика, Булгаково с.,

1 000 000 м²
Площадь
100 Га
Площадь участка

799 999 999 ₽

800 ₽ за м²

ID объявления 12168759

Поделиться

Добавить в избранное

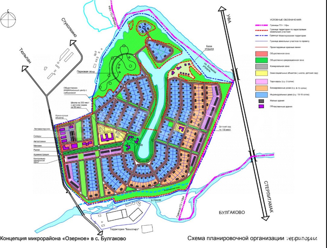
В продаже земельный участок под ИЖС в поселке Булгаково!Живописное место без перепадов высот! На всей территории участка вековые дубы!Граничит с асфальтовой дорогой!Отличный вариант для девелоперского проекта, строительства загородного коттеджного поселка!По границе участка проходит газ и электросети!В непосредственной доступности р.Уршак (прекрасное место для отдыха и рыбалки)Звоните по всем вопросам!

Арт. 123221903

Дата обновления: 16 декабря 2025