Аренда офисного помещения

966 780 ₽/мес

1 000 ₽ за м²/мес.

967 м²
Площадь
1/3
Этаж

Поделиться

Добавить в избранное

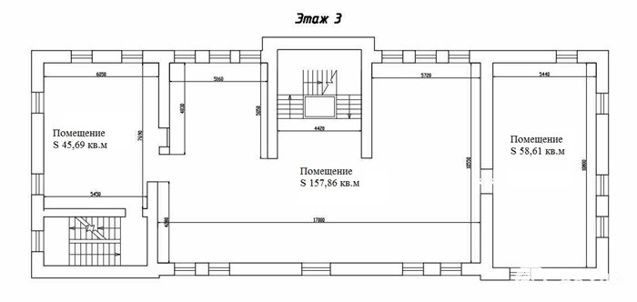
Сдается в аренду отдельно стоящее административное здание по адресу: г.Уфа, ул.Заки Валиди, д 64, площадь 966, 78 кв.м;1, 2, 3 этажи, каждый этаж по 325 кв.м. Высота потолков 1, 2, 3 этажей - 2, 7. Расположение вблизи перекрестка З.Валиди и просперта Салава Юлаева обеспечивает хорошую транспортную доступность. Фасад здания выходит на красную линию, отличные рекламные возможности, при должном подходе, здание легко узнаваемо, ваши клиенты или партнеры легко Вас найдут.
Позвоните по телефону для просмотра помещения, и Вы получите детальную квалифицированную информацию о данном объекте!
О нас: Мы специализируемся на продаже и аренде коммерческой недвижимости. Наша задача дать Вам всю необходимую информацию, подобрать для Вас нужный объект, провести переговоры по цене и условиям сделки, чтобы это заняло минимум Вашего времени.

Дата обновления: 20 февраля 2026