Аренда офисного помещения

75 000 ₽/мес

1 667 ₽ за м²/мес.

45 м²
Площадь
1/14
Этаж

Поделиться

Добавить в избранное

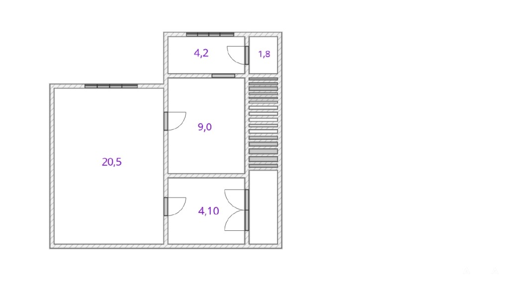
Арт. 89037767. ОФИС 45 м² в центре Уфы — 1 этаж, отдельный вход, парковка, парк Аксакова!

Сдаётся офис 45 м² в самом центре Уфы, по адресу ул. Новомостовая 8, на пересечении с ул. Заки Валиди, напротив парка Аксакова.
Идеальное место для офиса, , бухгалтерии или консультационного центра!

Характеристики помещения:
1 этаж жилого дома
2 смежных кабинета с окнами — светло и просторно
Свежий косметический ремонт
Отдельный вход со двора
Домофон, круглосуточный доступ
Санузел на этаже
Без мебели — можно организовать пространство под свои задачи
Интернет и телефония заведены (договора с провайдером заключаются самостоятельно)

Преимущества локации:
Центр города — престижный и удобный район
Напротив — ухоженный парк им. Аксакова с прогулочными зонами
В шаговой доступности:
МФЦ «Мои документы»
Нотариус
Агентства недвижимости, в том числе «ВИП РИЕЛТОР»
Банки, кафе, рестораны, магазины
Отличная транспортная развязка, рядом остановки
Условия аренды:
Договор на 11 месяцев
Залог — 1 месяц аренды
Коммунальные платежи — отдельно, по факту
Интернет и связь — по отдельному договору

Показ — в рабочее время.
Звоните, чтобы договориться о просмотре!
Готовый офис в самом центре города — заезжай и начинай работать.





Дата обновления: 29 октября 2025