Продажа торговой площади

Республика Башкортостан, село Иглино, улица Горького, 10Г

60 000 000 ₽

77 902 ₽ за м²

770 м²
Площадь
1/1
Этаж

Поделиться

Добавить в избранное

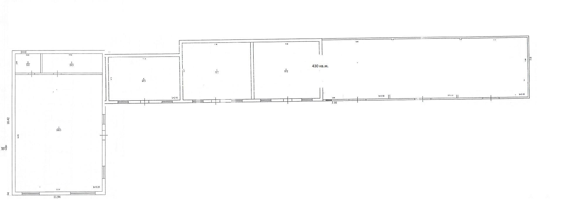
Предлагается на покупку комплекс состоящии из 4-х помещении : 200 кв.м., 66, 5 кв.м., 77, 7 кв.м. и 426 кв.м.
Каждое помещение имеет отдельную входную группу 
3 помещения с окнами - возможно расположение не только торговых сетей.
коммуникации: отопление - газовое собственная котельная, вода - скважена, канализация - шамбо, электричество - собственная ТП на 150 кВт
Земля в собственности.
Звоните!.
 
id:11228.

Дата обновления: 7 января 2026